ул. Авиационная, д.24, литера А, помещ. №7, офис 7

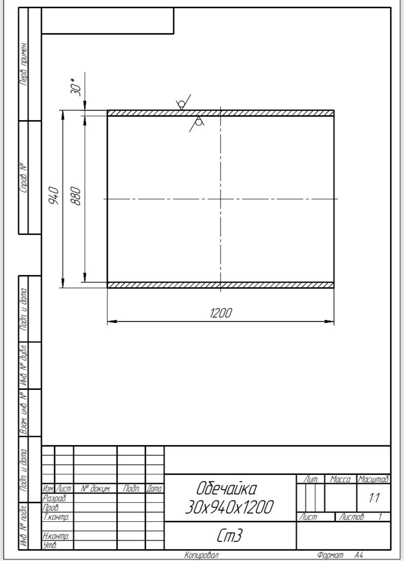
Обечайки из стали 09Г2С толщиной 30 мм

services

Рассказываем на примере изготовления обечайки из стали 09Г2С толщиной 30 мм

Компания Аванпром производит обечайки из низколегированной стали 09Г2С толщиной 30 мм по ГОСТ 34347-2017 для нефтегазовой, химической и энергетической промышленности. Наши цилиндрические обечайки выдерживают температуры от -60°C до +425°C и высокое давление благодаря отличной свариваемости и прочности стали 09Г2С.

Этапы производства

  • Точный раскрой
    Точный раскрой
    С помощью плазменной резки мы разрезаем стальной лист на заготовки нужного размера и формы, следуя чертежам будущей обечайки.
  • Подготовка к сварке
    Подготовка к сварке
    Кромки заготовок обрабатываются — снимаются фаски, чтобы обеспечить качественный и прочный сварочный шов.
  • Создание формы
    Создание формы
    На вальцах заготовки сгибаются до нужного диаметра, формируя цилиндрическую форму будущей обечайки.
  • Соединение в единое целое
    Соединение в единое целое
    Производится сварка продольного шва в месте стыка заготовок, обеспечивая герметичность и прочность конструкции.
  • Идеальная геометрия
    Идеальная геометрия
    После сварки обечайка проходит калибровку, чтобы устранить возможные деформации и добиться точных геометрических параметров.
Результат: Готовая обечайка из стали 09Г2С толщиной 30 мм – это прочная и надежная конструкция, готовая к использованию в различных отраслях промышленности: от строительства до нефтегазовой сферы.
  • Мы изготавливаем металлоконструкции, емкости и резервуары любой сложности, используя современное оборудование и передовые технологии.
  • Нужна надежная обечайка или другая металлоконструкция? Обращайтесь к нам. Мы гарантируем высокое качество, точные сроки и доступные цены.

Как заказать

Оставить заявку
Оставить заявку
Заполните на нашем сайте
Консультация и уточнение
Консультация и уточнение
Наши специалисты свяжутся для уточнения деталей заказа и ответят на вопросы
Разработка и согласование
Разработка и согласование
Подготовка ТКП и согласование с вами
Подписание договора и спецификации
Подписание договора и спецификации
Утверждаем согласованное ранее на юридическом уровне
Изготовление и контроль
Изготовление и контроль
Начало работ с пошаговым контролем качества
Доставка готовой продукции
Доставка готовой продукции
Получите точно выполненные детали в минимальный срок

Контакты

Адрес:
196135, г. Санкт-Петербург, ул. Авиационная, д.24, литера А, помещ. №7, офис 7
Адрес производства:
Индустриальная улица, 12, технопарк Федоровское, Тельмановское городское поселение, Тосненский район, Ленинградская область
Понедельник - Пятница: 9:00 - 18:00